TrainsRunner Studio
TrainsRunner Studio

Simulatore elettro-meccanico integrato


TrainsRunner Studio è il simulatore elettro-meccanico di sistemi ferroviari, metropolitani, e filo-tranviari con diversi tipi di alimentazione: 3 kV DC, 1.5 kV DC, 750 V DC, 600 V DC, 1x25 kV AC, 2x25 kV AC.

TrainsRunner Studio realizza la simulazione integrata del movimento dei treni su una o più linee (anche con nodi e diramazioni) e del funzionamento della rete elettrica di alimentazione AC o DC. TrainsRunner supporta la gestione dell’orario e il modello semplificato del sistema di segnalamento.

TrainsRunner Studio supporta il completo processo di progettazione, simulazione e analisi dei risultati basato sul simulatore TrainsRunner. TrainsRunner Studio consente di realizzare il disegno della rete elettrica di alimentazione basato su diagrammi circuitali e di effettuare l’editing di dati e modelli mediante tabelle o importazione da file MS Excel

TrainsRunner Studio integra potenti strumenti di analisi dei risultati, per la valutazione delle prestazioni (anche in base all’orario e al sistema di segnalamento), del funzionamento del sistema di alimentazione TE, del comportamento termico dei componenti e della sicurezza in caso di corto circuito. Un pacchetto opzionale consente di progettare la taratura delle protezioni da corto circuito (soglie degli interruttori)


  • Profilo plano-altimetrico (curve e livellette), gallerie
  • Limiti di velocità, stazioni e fermate
  • Elementi del segnalamento

  • Lunghezza, massa a vuoto, massa trasportata e masse rotanti
  • Resistenza al moto in funzione della velocità, della pendenza, del raggio di curva e della presenza di gallerie
  • Caratteristica di trazione e di frenatura meccanica ed elettrodinamica in funzione della velocità, rendimenti in funzione della velocità, limitazioni della corrente al pantografo in funzione della tensione, fattore di potenza in funzione della velocità (per sistemi AC)
  • Potenza media dei carichi ausiliari

  • Modello multiconduttore della linea per sistemi AC, modello circuitale (linea di contatto, binario, cavi in parallelo alla linea) per sistemi DC
  • Circuito e modello delle sotto stazioni AC e DC, con relativi alimentatori
  • Posti di parallelo tra linee differenti
  • Libreria di componenti (cavi, linee di contatto, apparati di sotto stazione)

  • Gestione di Orari con treni cadenzati
  • Gestione di orari definiti tramite il tempo di partenza, arrivo o transito nelle stazioni
  • Importazione dei dati orario da formato RailML

  • Grafici delle variabili elettro-meccaniche
  • Traingraph
  • Analisi termica dei componenti TE
  • Analisi del corto circuito e taratura delle protezioni

  • Progettazione del sistema di alimentazione della linea ferroviaria
  • Verifica delle prestazioni del sistema ferroviario (esercizio e rete di alimentazione)
  • Verifica del dimensionamento elettrico e termico dei componenti elettrici (linea di contatto, cavi, gruppi di alimentazione)
  • Calcolo delle correnti di corto circuito e progettazione delle protezioni
  • Valutazione energetica del sistema ferroviario: consumi dei veicoli, perdite, consumi del sistema, rigenerazione in frenatura, accumulo di energia
  • Verifica della sicurezza elettrica: potenziali di binario e della rete di terra durante l’esercizio o in caso di corto circuito

  • Diagramma rete DC/Layer positivo

    Il diagramma rappresenta il circuito positivo della rete di alimentazione DC (apparati di SSE, cavi di feeder, interruttori e sezionatori, linea di contatto)

  • Diagramma rete DC/Layer negativo

    Il diagramma rappresenta il circuito negativo della rete di alimentazione DC (binario, cavi di ritorno in SSE, circuito di protezione TE, circuito di terra, circuiti di binario)

  • Diagramma della rete multiconduttore AC

    Il diagramma contiene il grafo della rete multiconduttore AC, cioè le tratte di linea rappresentate da sezioni multiconduttore e i nodi di interconnessione

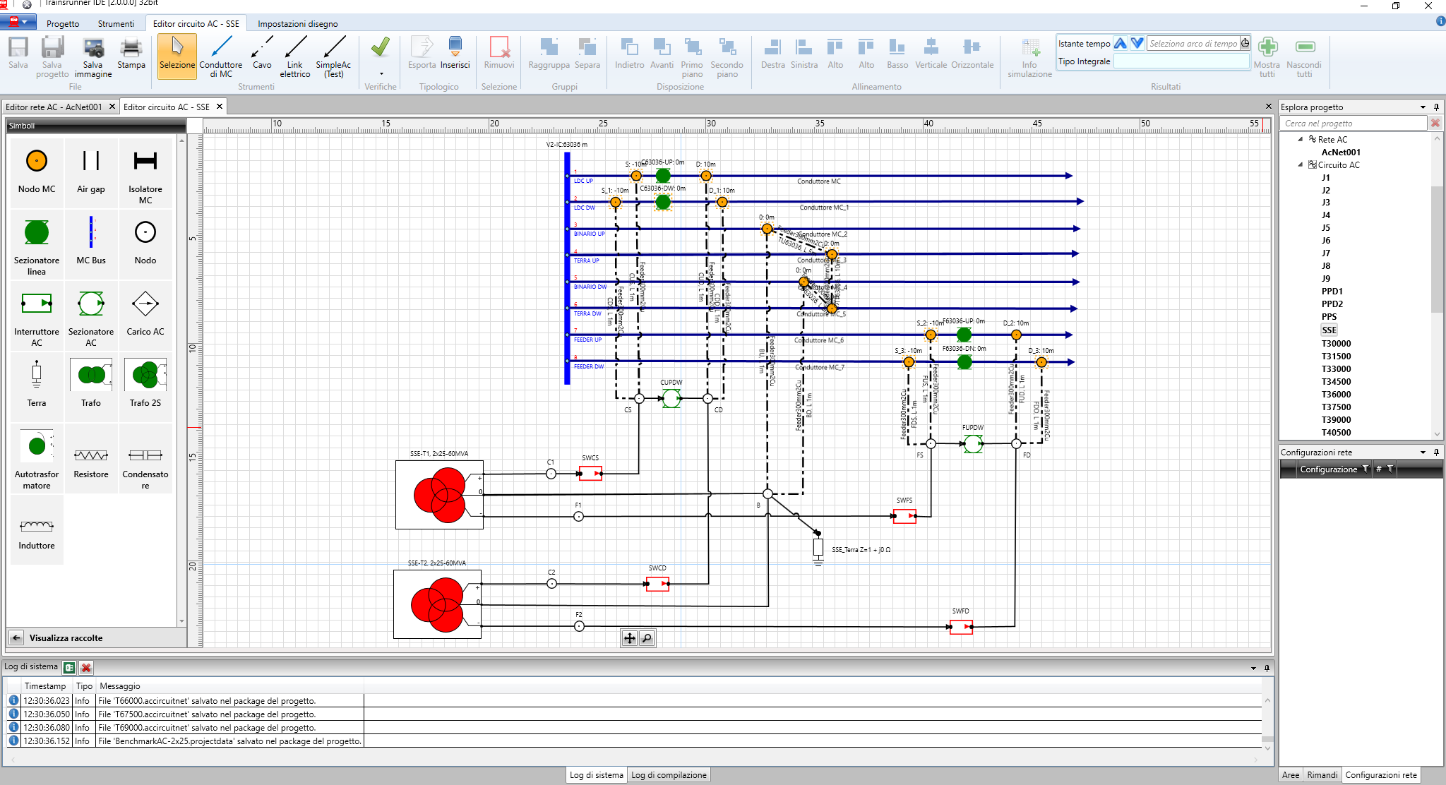
  • Diagramma di un nodo di interconnessione della rete AC

    Il diagramma rappresenta lo schema elettrico di un nodo della rete AC che connette due sezioni multiconduttore (p.es. una sotto stazione di alimentazione)

  • Schema a blocchi di TrainsRunner Studio

    Lo schema illustra le principali funzioni di TrainsRunner Studio

  • Visualizzazione grafica dei risultati della simulazione

    TrainsRunner Studio comprende uno strumento per la visualizzazione dei risultati della simulazione, che possono essere organizzati in pagine con un layout basato su righe e colonne

  • Traingraph

    TrainsRunner Studio comprende uno strumento per il disegno del TrainGraph, cioè delle tracce dei treni (posizione) in funzione del tempo

  • Analisi di corto circuito in DC

    TrainsRunner Studio comprende uno strumento per l’analisi del corto circuito in DC e per la taratura delle protezioni. Il diagramma aiuta l’utente a valutare l’efficacia delle protezioni quando il CC si sposta lungo le diverse tratte di linea. Le barre orizzontali mostrano dove le protezioni intervengono.

Click su un'immagine per la visualizzazione di dettaglio



Scarica la brochure di TrainsRunner Studio

Scarica la descrizione tecnica di TrainsRunner Studio